Property Description
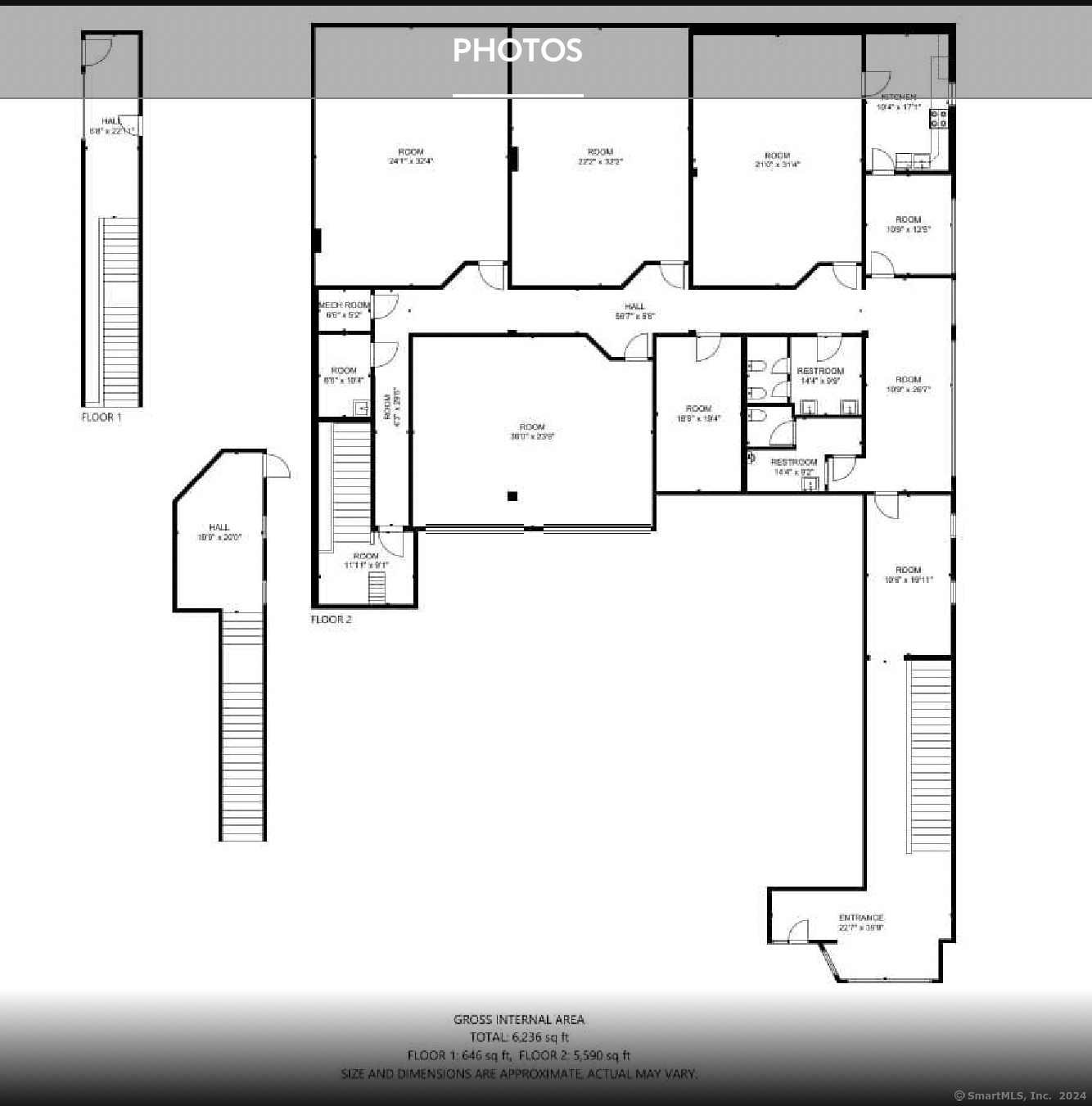
Nice office/retail space 33 West Main St., Vernon, CT 4300 ft. 4 Large rooms, two bathrooms and kitchen area . Don’t miss this opportunity. Adaptable unit for retail, professional office,School Rooms Restaurant use and more in the heart of a historic district. Located across from Rockville General Hospital with Tenant mix that includes boost mobile Antonio pizzeria and Get fresh laundromat. Situated within 20 minute drive from downtown Hartford and surrounded by robust population of 174,000 residence within a 15 minute drive Other smaller and larger units available
Features
- Heating System:
- Hot Air
- Cooling System:
- Central Air
- Heat Fuel Type:
- Natural Gas
- Handicap Features:
- 32" Minimum Door Widths, 60" Turning Radius
- Interior Features:
- Public Restrooms, Employee Lounge
- Fireplaces Total:
- 0
- Parking Total Spaces:
- 30
- Location:
- Downtown, Strip Mall
- Water Source:
- Public Water Connected
Address Map
- Street:
- Main
- Street Number:
- 33
- Floor Number:
- 0
- Longitude:
- W73° 33′ 3.3”
- Latitude:
- N41° 52′ 0.3”
- Street Dir Prefix:
- West
MLS Addon
- Office Name:
- Keller Williams Coastal
- Agent Name:
- Thomas Simjian
- List Agent MLSID:
- SIMJIANT
- List Office MLSID:
- KWEB60
- Directions:
- GPS 33 W. Main St., Vernon
- HOA Fee Amount:
- $0
- Parcel Number:
- 1664802
- Property Tax:
- $0
- Zoning:
- DBR
Commercial For Lease
33 Main, Vernon, 06066
0 Bedrooms
0 Bathrooms
4,300 Sqft
$3,583
Listing ID #24143510
Basic Details
- Property Type :
- Commercial For Lease
- Listing Type :
- For Rent
- Listing ID :
- 24143510
- Price :
- $3,583
- Bedrooms :
- 0
- Bathrooms :
- 0
- Half Bathrooms :
- 0
- Square Footage :
- 4,300 Sqft
- Year Built :
- 1951
- Lot Area :
- 1.51 Acre
- City:
- Vernon
- Zipcode:
- 06066
Agent info
RE/MAX Right Choice
43 South Main Street, Newtown CT 06470
- Ben Keeney
- View website
- 203-313-0013
- 866-886-0013
-
-
Contact Agent
